Montažna kuća TIP 110

  • 127.15 m2 Bruttoquadratmeter

  • 115.81 m2 Nettoquadratmeter

  • 3 Schlafzimmer

  • Abstellraum

  • Terrasse

  • Badezimmer

Details speichern

43,100€

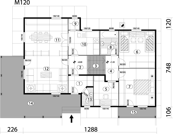
Raumübersicht

  • 1. Terrasse 25.02 m2
  • 2. Windschutz 3.37 m2
  • 3. Diele 3.24 m2
  • 4. Treppe 3.24 m2
  • 5. Galerie 2.88 m2
  • 6. WC 1.88 m2
  • 7. Badezimmer 3.91 m2
  • 8. Küche 6.9 m2
  • 9. Abstellraum 1.21 m2
  • 10. Esszimmer 14.76 m2
  • 11. Wohnzimmer 14.76 m2
  • 12. Kinderzimmer 12.42 m2
  • 13. Schlafzimmer 12.42 m2
  • 14. Schlafzimmer 5.89 m2
  • 15. Balkon 3.91 m2

Technische Zeichnung

House Image 2D

Haben Sie Fragen zum gezeigten Haus?

Kontaktirajte nas i saznajte više informacija o modelu kuće, procesu gradnje i cenama.

Montažna kuća TIP 110

Nachricht wurde erfolgreich gesendet. Vielen Dank für Ihr Interesse.